N00012 | Prodej stavebního pozemku - 1.507 m2, Veverské Knínice, Brno-venkov

Veverské Knínice
neuvedeno

Nabízíme ve výhradním zastoupení pěkný rovinatý stavební pozemek o velikosti 1.507 m2 v obci Veverské Knínice, na kterém lze postavit samostatně stojící rodinný dům. Pozemek se nachází na kraji obce ve velmi klidné části a z východní, jižní i západní strany nesousedí s jiným rodinným domem. Stavební šířka pozemku je cca 15,5 m a délka cca 97,2 m. Vjezd na pozemek vede přes obecní pozemek - cestu.
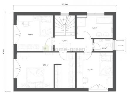
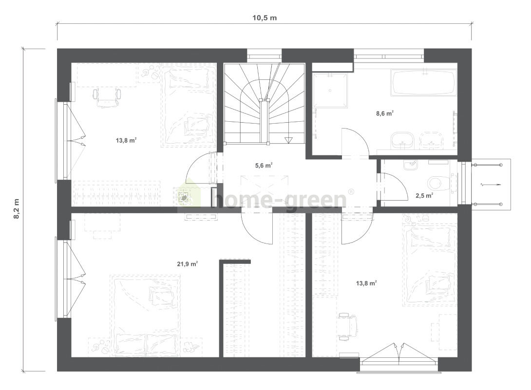
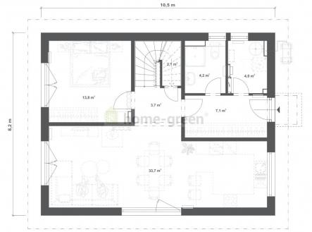
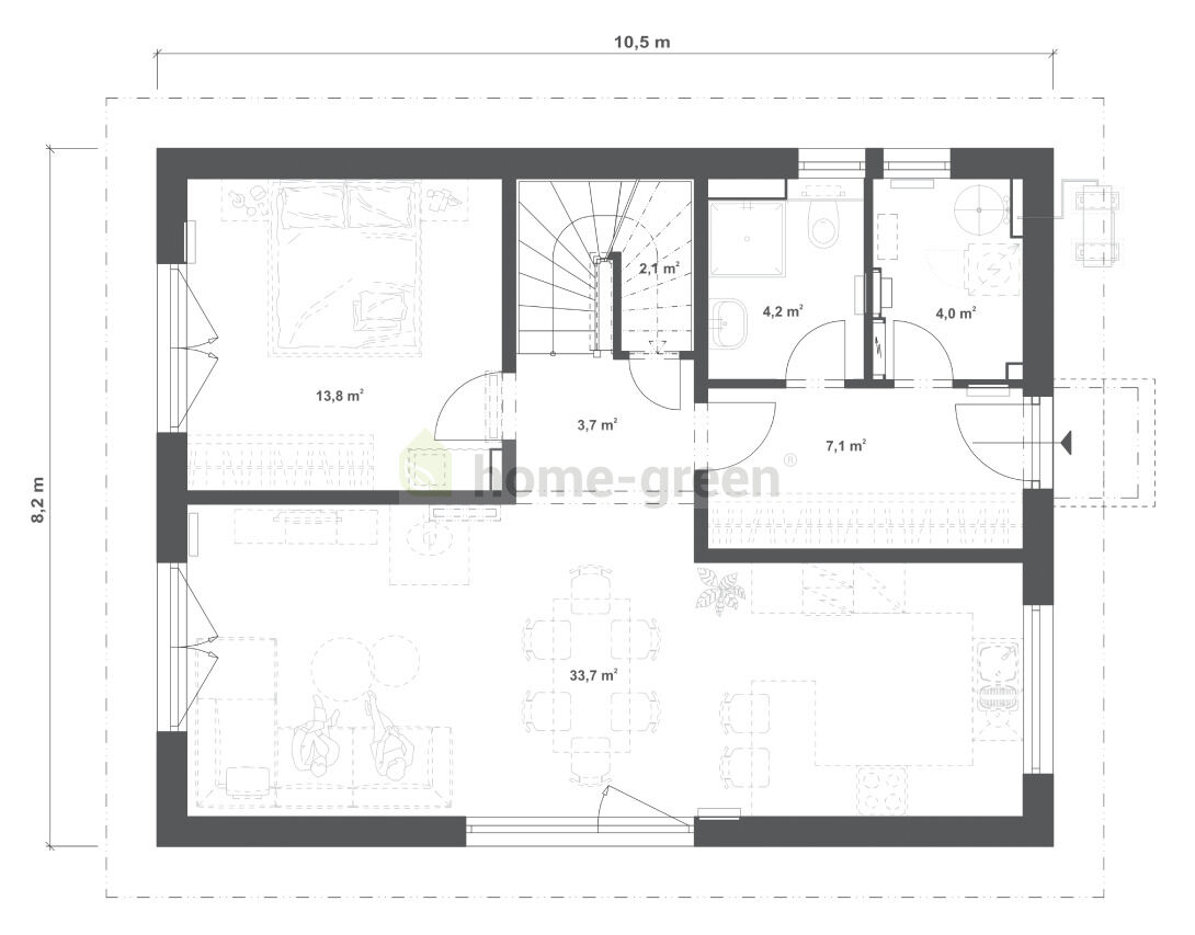
Doporučujeme na pozemku postavit dřevostavbu RD Rýmařov - Family 135, která zaujme moderním designem a která je ideální i pro užší pozemky. Tento kompaktní dům nabízí promyšlenou otevřenou dispozici s velkými prosklenými plochami, které se rozprostírají přes obě podlaží, tím přinášejí dostatek světla do obývací, jídelní i kuchyňské části. Velké prosklené dveře vedou přímo na prostornou terasu, což je ideální místo pro relaxaci a společenská setkání. V poschodí se nachází ložnice s krásným výhledem a další dvě prostorné místnosti, které poskytují klid a naprosté soukromí. Tento dům dokonale spojuje moderní estetiku s praktickými potřebami rodiny, což z něj činí skvělou volbu pro pohodlné rodinné bydlení. Provedení domu - dispozice je 5 + kk. Rozměry domu 10,54 x 8,21 m. Tepelné čerpadlo je v ceně domu. Čerpadlo vzduch - vzduch v zimě dům vyhřeje, v létě zase ochladí. Fotovoltaická elektrárna je v ceně domu. Systém ON GRID s akumulací do zásobníku TUV: využívá sluneční energii pro ohřev užitkové vody v 200 litrovém zásobníku. Základová deska je v ceně domu. Výstavbu tohoto rodinného domu Vám rádi zprostředkujeme. Uveřejněné fotografie RD k výstavbě jsou pouze ilustrativní.
Veverské Knínice jsou obec v okrese Brno-venkov v Jihomoravském kraji. Leží na rozhraní Boskovické brázdy a Křižanovské vrchoviny. Krásná příroda v okolí obce poskytuje velké možnosti pro volnočasovou aktivitu v blízkosti Brněnské přehrady a hradu Veveří. Nejvýznamnější a umělecky i stavebně nejcennější budovou v obci je kostel sv. Mikuláše. Podle archeologických průzkumů pochází nejpozději z počátku druhé poloviny 13. století. V současné době je v obci 332 domů a žije tu přibližně 954 obyvatel. Obec je vzdálená cca 10 km od města Rosice a cca 20 Km západně od města Brno. Sjezd z dálnice D1 je v blízkosti 3 km u obce Ostrovačice.
Nabídku doporučujeme a se zajištěním financování pomůžeme.

  • Celková plocha:1 507 m2
  • Druh pozemku:pro bydlení
  • Inženýrské sítě:vodovod; kanalizace; elektřina
  • Umístění objektu:okraj obce
  • Doprava:autobus
  • Komunikace:neupravená


Prodávající makléř

Penelope

Ing. Hana Vaculíková

Kontaktní formulář