N00013 | Prodej RD na klíč 135 m², pozemek 1.507 m², Veverské Knínice, Brno-venkov A

Veverské Knínice
12 490 000 Kč (za nemovitost)

Ve výhradním zastoupení Vám zprostředkujeme prodej rodinného patrového domu Family s užitnou plochou 135 m2 k výstavbě na pozemku o velikosti 1.507 m2 v obci Veverské Knínice. Pozemek se nachází na kraji obce ve velmi klidné části a z východní, jižní i západní strany nesousedí s jiným rodinným domem. Stavební šířka pozemku je cca 15,5 m a délka cca 97,2 m. Vjezd na pozemek vede přes obecní pozemek - cestu.
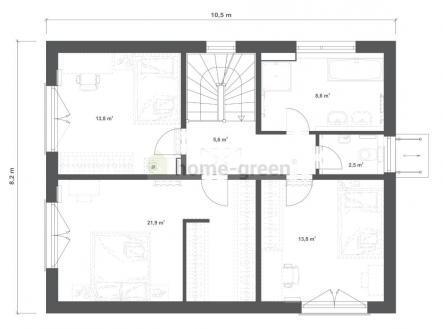
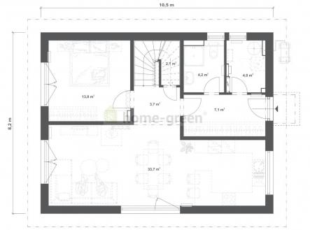
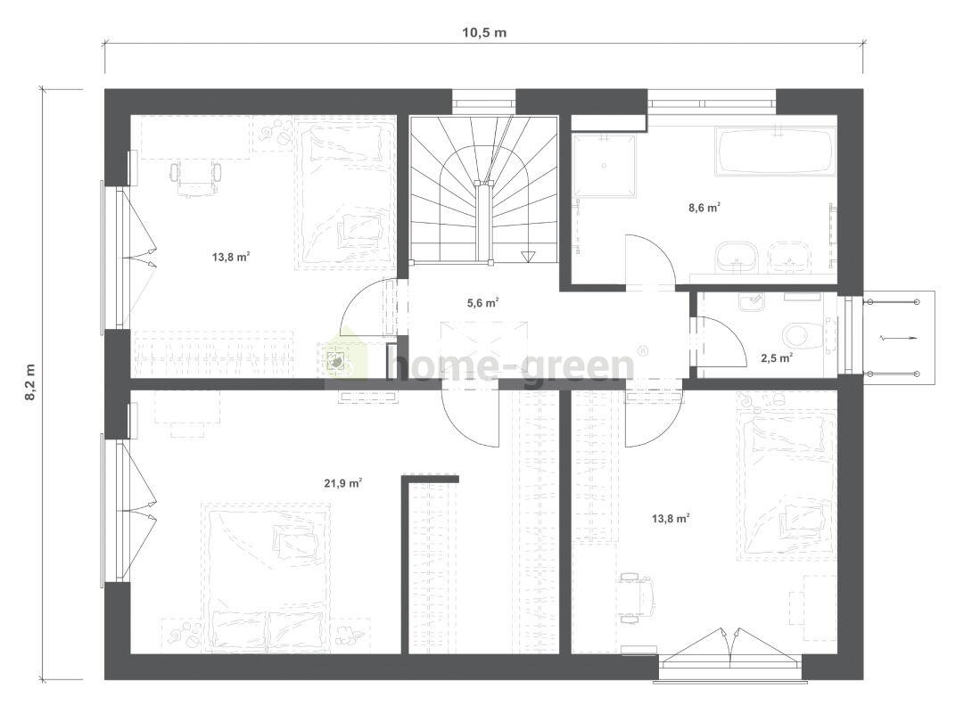
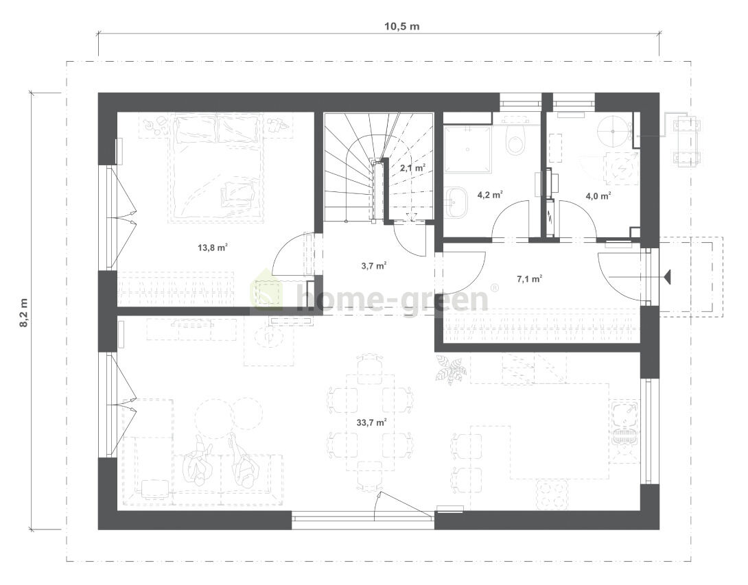
Dům dodavatele RD Rýmařov - Family 135 zaujme moderním designem, který je ideální také pro užší pozemky. Tento kompaktní dům nabízí promyšlenou otevřenou dispozici s velkými prosklenými plochami, které se rozprostírají přes obě podlaží, tím přinášejí dostatek světla do obývací, jídelní i kuchyňské části. Velké prosklené dveře vedou přímo na prostornou terasu, což je ideální místo pro relaxaci a společenská setkání. V poschodí se nachází ložnice s krásným výhledem a další dvě prostorné místnosti, které poskytují klid a naprosté soukromí. Tento dům dokonale spojuje moderní estetiku s praktickými potřebami rodiny, což z něj činí skvělou volbu pro pohodlné rodinné bydlení. Provedení domu - dispozice je 5 + kk. Rozměry domu 10,54 x 8,21 m.
Tepelné čerpadlo je v ceně domu. Čerpadlo vzduch - vzduch v zimě dům vyhřeje, v létě zase ochladí. Fotovoltaická elektrárna je v ceně domu. Systém ON GRID s akumulací do zásobníku TUV: využívá sluneční energii pro ohřev užitkové vody v 200 litrovém zásobníku. Základová deska je v ceně domu.
Veverské Knínice jsou obec v okrese Brno-venkov v Jihomoravském kraji. Leží na rozhraní Boskovické brázdy a Křižanovské vrchoviny. Krásná příroda v okolí obce poskytuje velké možnosti pro volnočasovou aktivitu v blízkosti Brněnské přehrady a hradu Veveří. V současné době je v obci 332 domů a žije tu přibližně 954 obyvatel. Obec je vzdálená cca 10 km od města Rosice a cca 20 Km západně od města Brno. Sjezd z dálnice D1 je v blízkosti 3 km u obce Ostrovačice. Uveřejněné fotografie RD k výstavbě jsou pouze ilustrativní. Nabídku doporučujeme a se zajištěním financování pomůžeme.

  • Poloha objektu:samostatný
  • Druh objektu:dřevěná
  • Stav objektu:projekt
  • Počet podlaží v objektu:2
  • Typ domu:patrový
  • Zastavěná plocha:86 m2
  • Užitná plocha:135 m2
  • Plocha parcely:1507 m2
  • Umístění objektu:okraj obce
  • Doprava:autobus
  • Elektřina:Elektro - 230 V; Elektro - 380 V
  • Voda:Vodovod
  • Odpad:Kanalizace
  • Energetická náročnost budovy:A - Mimořádně úsporná
  • Energetický ukazatel
    podle vyhlášky:
    č. 264/2020 Sb.


Prodávající makléř

Penelope

Ing. Hana Vaculíková

Kontaktní formulář