Zprostředkujeme Vám prodej pěkného stavebního pozemku o velikosti 1.507 m2 v obci Veverské Knínice, který nabízíme k prodeji ve výhradním zastoupení majitele. Pozemek se nachází na kraji obce ve velmi klidné části. Stavební šířka pozemku je cca 15,5 m a délka cca 97,2 m. Vjezd na pozemek vede z obecní cesty. Inženýrské sítě jsou vzdálené několik metrů.
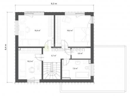
Doporučujeme na tomto pozemku postavit rodinný patrový kompaktní 5-pokojový dům KUBIS 121, který je častým požadavkem našich zákazníků. Tento rodinný dům má plnohodnotnou ložnici/pracovnu v přízemí a další 3 velké pokoje v patře. Pultová střecha a velká okna podtrhávají jeho moderní vzhled. Čtvercový půdorys a zastavěná plocha necelých sto metrů čtverečních jsou ideální i na menší pozemky. Přesto se vám bude v tomto typovém domě pohodlně bydlet, protože poskytuje 121 m2 obytné plochy. Garážové stání formou zastřešené pergoly a krytý vstup do domu zvyšují jeho komfort a oblíbenost. Proč si vybrat dům od RD Rýmařov? Tepelné čerpadlo v ceně domu, čerpadlo vzduch - vzduch v zimě dům vyhřeje, v létě zase ochladí v ceně domu, fotovoltaická elektrárna v ceně domu - systém ON GRID s akumulací do zásobníku TUV: využívá sluneční energii pro ohřev užitkové vody v 200 litrovém zásobníku. Základová deska je v ceně domu - ušetříte, a navíc vám odpadne spousta starostí.
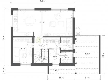
Provedení domu 5 + kk
Užitná plocha 121 m2
Zastavěná plocha vč. stání 104 m2
Rozměry domu 9.1 x 8.4 m
Veverské Knínice jsou obec v okrese Brno-venkov v Jihomoravském kraji. Leží na rozhraní Boskovické brázdy a Křižanovské vrchoviny. Krásná příroda v okolí obce poskytuje velké možnosti pro volnočasovou aktivitu v blízkosti Brněnské přehrady a hradu Veveří. Ve Veverských Knínicích můžete navštívit kapličku sv. Ludmily s kamenem z Araratu, případně zrekonstruovanou sokolovnu. Pro výlety do okolí se hodí Podkomorské lesy s památníkem Helenky z Pohádky máje, nebo se můžete vydat na nedalekou vyhlídku Trůn. Mezi další blízké cíle patří Jarošův mlýn ve Veverské Bítýšce , hrad Veveří nebo Auto-motodrom Brno v Ostrovačicích. Obec je součástí dobrovolného svazku obcí Panství hradu veverského. V současné době je v obci 332 domů a žije tu přibližně 954 obyvatel. Obec je vzdálená cca 10 km od města Rosice a cca 20 Km západně od města Brno. Sjezd z dálnice D1 je v blízkosti 3 km u obce Ostrovačice a v centru Brna lze být autem za 15 minut. Vizualizace RD k výstavbě je pouze ilustrativní. Nabídku doporučujeme a se zajištěním financování Vám rádi pomůžeme.
Energetický štítek: B - Úsporná dle vyhlášky č. 264/2020 Sb.
- Celková plocha:1 507 m2
- Druh pozemku:pro bydlení
- Charakter okolní zástavby:obytná
- Umístění objektu:okraj obce
- Doprava:dálnice; autobus
- Komunikace:neupravená
- Elektřina:Elektro - 230 V; Elektro - 400 V
- Voda:Vodovod
- Odpad:Kanalizace
- Ostatní rozvody:Kabelové rozvody
- Předzahrádka:1507 m2
