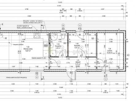
Zprostředkujeme Vám prodej pozemku, parcela číslo 769/6, o velikosti 478 m2 v obci Veverské Knínice, který nabízíme ve výhradním zastoupení majitele, k výstavbě pěkného rodinného přízemního domu Michael s dispozicí 3+KK - 57 m2 s rozměry 13,5 m x 4,2 m na klíč. Nabídková cena je včetně ceny pozemku, vodovodní a kanalizační přípojky a katalogové ceny domu od stavební společnosti Top-Mobile House. Pozemek má šířku cca 11,2 m a délku cca 42,67 m. Vjezd na pozemek vede ze silnice na příjezdu do obce.
RD spojuje praktické řešení a úsporný provoz, takže poskytuje maximální pohodlí pro celou rodinu. Moderní dům, který kombinuje elegantní design s nadčasovými prvky a je vhodný pro celoroční bydlení. Váš nový domov si můžete navrhnout přesně podle svých představ. Máte možnost individuálního rozložení místností, příček i volby materiálů pro interiér a exteriér vašeho domu.
Veverské Knínice jsou obec v okrese Brno-venkov v Jihomoravském kraji. Leží na rozhraní Boskovické brázdy a Křižanovské vrchoviny. Krásná příroda v okolí obce poskytuje velké možnosti pro volnočasovou aktivitu v blízkosti Brněnské přehrady a hradu Veveří. Ve Veverských Knínicích můžete navštívit kapličku sv. Ludmily s kamenem z Araratu, případně zrekonstruovanou sokolovnu. Pro výlety do okolí se hodí Podkomorské lesy s památníkem Helenky z Pohádky máje, nebo se můžete vydat na nedalekou vyhlídku Trůn. Mezi další blízké cíle patří Jarošův mlýn ve Veverské Bítýšce , hrad Veveří nebo Auto-motodrom Brno v Ostrovačicích. Obec je součástí dobrovolného svazku obcí Panství hradu veverského. V současné době je v obci 332 domů a žije tu přibližně 954 obyvatel. Obec je vzdálená cca 10 km od města Rosice a cca 20 Km západně od města Brno. Sjezd z dálnice D1 je v blízkosti 3 km u obce Ostrovačice a v centru Brna lze být autem za 15 minut. Vizualizace RD k výstavbě je pouze ilustrativní. Nabídku doporučujeme všem, kteří chtějí bydlet v RD se zahradou za cenu bytu a se zajištěním financování Vám rádi pomůžeme.
- Poloha objektu:samostatný
- Druh objektu:dřevěná
- Stav objektu:projekt
- Počet podlaží v objektu:1
- Typ domu:přízemní
- Zastavěná plocha:57 m2
- Užitná plocha:57 m2
- Plocha parcely:478 m2
- Umístění objektu:klidná část obce
- Elektřina:Elektro - 230 V
- Voda:Vodovod
- Odpad:Kanalizace
- Ostatní rozvody:Kabelové rozvody
- Energetická náročnost budovy:A - Mimořádně úsporná
- Ukazatel energetické náročnosti budovy:0.16 kWh/m²
- Energetický ukazatel
podle vyhlášky:č. 264/2020 Sb. - Předzahrádka:478 m2
