Zprostředkujeme Vám prodej pozemku o velikosti 629 m2 v obci Veverské Knínice, který nabízíme ve výhradním zastoupení majitele, k výstavbě pěkného rodinného patrového domu KUBIS 99 s dispozicí 4+KK a užitnou plochou 99 m2. Nabídková cena je včetně ceny pozemku a katalogové ceny domu od stavební společnosti RD Rýmařov, která tento dům na klíč nabízí včetně základové desky, tepelného čerpadla a fotovoltaické elektrárny s ohřevem vody. Pozemek se nachází na kraji obce ve velmi klidné části. Stavební šířka pozemku je cca 11 m a délka cca 57,18 m. Vjezd na pozemek vede z obecní cesty. Zastavěná plocha této dřevostavby je 65 m2.
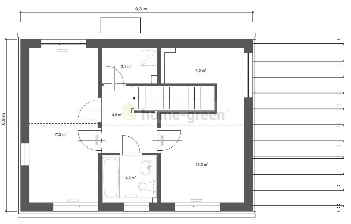
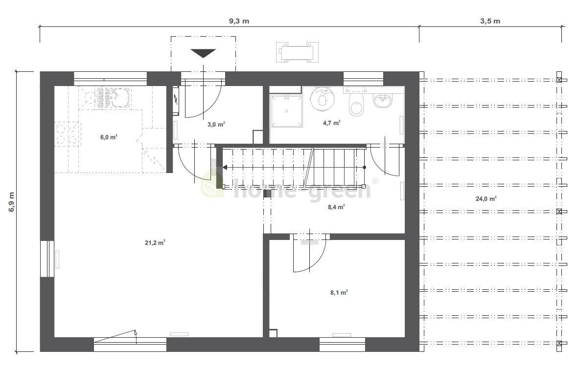
KUBIS 99 je revolučním domem na trhu s dřevostavbami. Je to moderní rodinný dům o dispozicích 4+kk, ideální dům pro rodiny s dětmi, s možností jednoduchého rozšíření na 5+kk. V přízemí se nachází kuchyňský kout spojený s obývacím pokojem, který umožní přímý vstup na slunnou terasu. Nechybí tu ani samostatný pokoj a koupelna. V podkroví se pak nachází další 3 prostorné pokoje a praktická technická místnost. Samozřejmostí je i druhá koupelna. Půdorys o rozměru 9,34 × 6,91 m vám v tomto patrovém rodinném domě poskytne téměř 100 m2 podlahových ploch. Navíc vám KUBIS 99 nabízí možnost rozšíření z dispozice 4+kk na 5+kk. Vedle domu se skvěle hodí i dřevěná pergola, která poslouží jako stání pro auto. V ceně domu je garážové stání formou nezastřešené pergoly. Nabídková cena je včetně pozemku, základové desky, tepelného čerpadla, fotovoltaické elektrárny s ohřevem vody.
Veverské Knínice jsou obec v okrese Brno-venkov v Jihomoravském kraji. Leží na rozhraní Boskovické brázdy a Křižanovské vrchoviny. Krásná příroda v okolí obce poskytuje velké možnosti pro volnočasovou aktivitu v blízkosti Brněnské přehrady a hradu Veveří. Ve Veverských Knínicích můžete navštívit kapličku sv. Ludmily s kamenem z Araratu, případně zrekonstruovanou sokolovnu. Pro výlety do okolí se hodí Podkomorské lesy s památníkem Helenky z Pohádky máje, nebo se můžete vydat na nedalekou vyhlídku Trůn. Mezi další blízké cíle patří Jarošův mlýn ve Veverské Bítýšce , hrad Veveří nebo Auto-motodrom Brno v Ostrovačicích. Obec je součástí dobrovolného svazku obcí Panství hradu veverského. V současné době je v obci 332 domů a žije tu přibližně 954 obyvatel. Obec je vzdálená cca 10 km od města Rosice a cca 20 Km západně od města Brno. Sjezd z dálnice D1 je v blízkosti 3 km u obce Ostrovačice a v centru Brna lze být autem za 15 minut. Vizualizace RD k výstavbě je pouze ilustrativní. Nabídku doporučujeme všem, kteří chtějí bydlet v RD se zahradou za cenu bytu a se zajištěním financování Vám rádi pomůžeme.
- Poloha objektu:samostatný
- Druh objektu:dřevěná
- Stav objektu:projekt
- Počet podlaží v objektu:1
- Typ domu:patrový
- Zastavěná plocha:65 m2
- Užitná plocha:99 m2
- Plocha parcely:629 m2
- Umístění objektu:okraj obce
- Doprava:autobus
- Elektřina:Elektro - 230 V; Elektro - 400 V
- Voda:Vodovod
- Odpad:Kanalizace
- Ostatní rozvody:Kabelové rozvody
- Energetická náročnost budovy:B - Velmi úsporná
- Ukazatel energetické náročnosti budovy:0.16 kWh/m²
- Energetický ukazatel
podle vyhlášky:č. 264/2020 Sb. - Předzahrádka:629 m2
- Počet parkovacích míst:1
