Zprostředkujeme Vám prodej pěkného stavebního pozemku o velikosti 800 m2 v obci Veverské Knínice, který nabízíme k prodeji ve výhradním zastoupení majitele, na výstavbu rodinného domu KUBIS 99 s dispozicí 5+KK, užitnou plochou 99 m² a zastavěnou plochou 65 m². Nabídková cena je včetně pozemku a katalogové ceny RD na klíč. Rok výstavby - 2027.
Pozemek se nachází na kraji obce ve velmi klidné části. Stavební šířka pozemku parc. č. 769/22 je cca 15,5 m a délka cca 51,6 m. Vjezd na pozemek vede z obecní cesty p.č.765. Inženýrské sítě jsou v dosahu několika metrů. Na přípojky není potřeba stavební povolení.
Doporučujeme na tomto pozemku postavit pěkný přízemní KUBIS 99 je revolučním domem na trhu s dřevostavbami. Moderní rodinný dům o dispozicích 4+kk s možností jednoduchého rozšíření na 5+kk. V ceně domu je garážové stání formou nezastřešené pergoly.
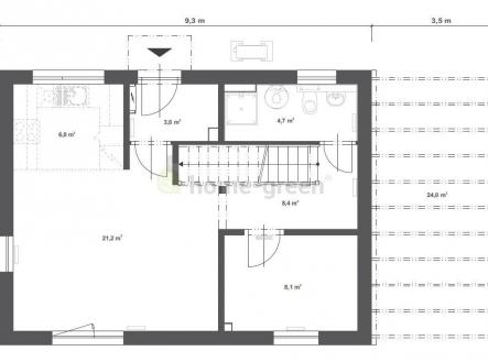
Provedení domu - 5 + KK.
Užitná plocha - 99 m2
Zastavěná plocha bez stání - 65 m2
Rozměry domu - 9.3 x 6.9 m
Proč si vybrat dům od RD Rýmařov?
Tepelné čerpadlo je v ceně domu. Čerpadlo vzduch - vzduch v zimě dům vyhřeje, v létě zase ochladí
Fotovoltaická elektrárna je v ceně domu. Systém ON GRID s akumulací do zásobníku TUV: využívá sluneční energii pro ohřev užitkové vody v 200 litrovém zásobníku.
Základová deska je v ceně domu. Ušetříte, a navíc vám odpadne spousta starostí.
Veverské Knínice jsou obec v okrese Brno-venkov v Jihomoravském kraji. Leží na rozhraní Boskovické brázdy a Křižanovské vrchoviny. Krásná příroda v okolí obce poskytuje velké možnosti pro volnočasovou aktivitu v blízkosti Brněnské přehrady a hradu Veveří. Ve Veverských Knínicích můžete navštívit kapličku sv. Ludmily s kamenem z Araratu, případně zrekonstruovanou sokolovnu. Pro výlety do okolí se hodí Podkomorské lesy s památníkem Helenky z Pohádky máje, nebo se můžete vydat na nedalekou vyhlídku Trůn. Mezi další blízké cíle patří Jarošův mlýn ve Veverské Bítýšce , hrad Veveří nebo Auto-motodrom Brno v Ostrovačicích. Obec je součástí dobrovolného svazku obcí Panství hradu veverského. V současné době je v obci 332 domů a žije tu přibližně 954 obyvatel. Obec je vzdálená cca 10 km od města Rosice a cca 20 Km západně od města Brno. Sjezd z dálnice D1 je v blízkosti 3 km u obce Ostrovačice a v centru Brna lze být autem za 15 minut. Vizualizace RD k výstavbě je pouze ilustrativní. Nabídku doporučujeme a se zajištěním financování Vám rádi pomůžeme.
Energetický štítek: B - Úsporná dle vyhlášky č. 264/2020 Sb.
- Poloha objektu:samostatný
- Druh objektu:dřevěná
- Stav objektu:projekt
- Počet podlaží v objektu:2
- Typ domu:patrový
- Zastavěná plocha:65 m2
- Užitná plocha:99 m2
- Plocha parcely:800 m2
- Umístění objektu:okraj obce
- Doprava:dálnice; silnice; autobus
- Elektřina:Elektro - 230 V
- Voda:Vodovod
- Topení:Ústřední - elektrické
- Odpad:Kanalizace
- Ostatní rozvody:Kabelové rozvody
- Energetická náročnost budovy:B - Velmi úsporná
- Ukazatel energetické náročnosti budovy:0.16 kWh/m²
- Energetický ukazatel
podle vyhlášky:č. 264/2020 Sb. - Předzahrádka:800 m2
